更新日:2026.05.15
更新日:2026.05.15
大分県大分市府内町3-4-20
JR「大分」駅徒歩11分
地上8階 地下1階
7,626.67㎡
個別空調
光・高速
インターネット
トイレ男女別
駐車場設備
[形式・募集台数]
詳細はお問合せ下さい
| フロア | 用途 | 床面積(契約面積) | 入居時期 | 図面(クリックで拡大) |
|---|---|---|---|---|
| 4F-9 | 事務所 | 79.69㎡ (24.11坪) |
即可 |
![]() |
| 5F-7 | 事務所 | 55.78㎡ (16.90坪) |
2026年6月(予定) |
![]() |
| 6F-3 | 事務所 | 42.31㎡ (12.80坪) |
即可 |
![]() |
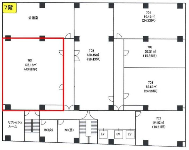
| 7F-1 | 事務所 | 135.15㎡ (40.88坪) |
即可 |
![]() |
| フロア/用途 | 床面積(契約面積) | 入居時期 |
|---|---|---|
| 4F-9 事務所 |
79.69㎡ (24.11坪) |
即可 |
![]() 図面を |
||
| フロア/用途 | 床面積(契約面積) | 入居時期 |
|---|---|---|
| 5F-7 事務所 |
55.78㎡ (16.90坪) |
2026年6月(予定) |
![]() 図面を |
||
| フロア/用途 | 床面積(契約面積) | 入居時期 |
|---|---|---|
| 6F-3 事務所 |
42.31㎡ (12.80坪) |
即可 |
![]() 図面を |
||
| フロア/用途 | 床面積(契約面積) | 入居時期 |
|---|---|---|
| 7F-1 事務所 |
135.15㎡ (40.88坪) |
即可 |
![]() 図面を |
||




ご質問・ご相談もお気軽に!
移転のことなら何でもお任せください!